Bilocale in vendita

Fiuggi, Via Nuova Italia - Fiuggi Centro
€ 53.500
Prezzo aggiornato
2 locali 2 locali
45 Mq 45 Mq
1 bagno 1 bagno

Bilocale in vendita

Fiuggi, Via Nuova Italia - Fiuggi Centro

Descrizione annuncio

Volete abbinare praticità, funzionalità ed unicità nel cuore di Fiuggi?

Ecco a Voi un 'gioiello immobiliare' che abbina più aspetti, sicuramente apprezzabili e ricercati, in una seconda casa.

PERCHE' PRATICO?

Soluzione studiata nei minimi dettagli, per sfruttare al meglio tutti gli spazi disponibili. Posizionata in centro ha il vantaggio di poter parcheggiare la macchina, 'dimenticarla' per il resto del soggiorno e muoversi comodamente a piedi per raggiungere tutti i servizi essenziali.

PERCHE' FUNZIONALE?

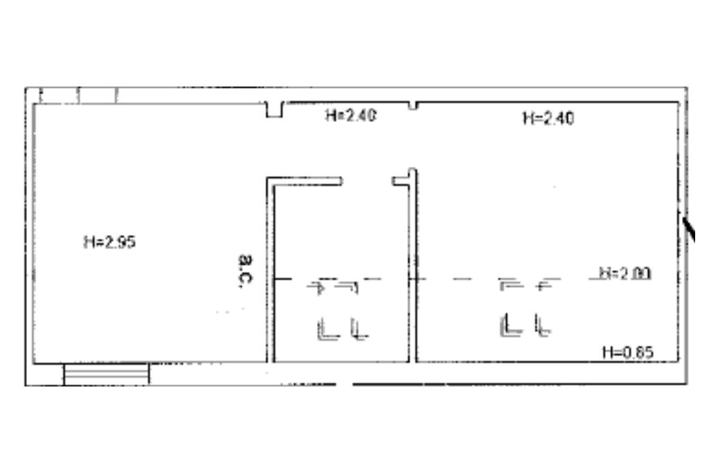
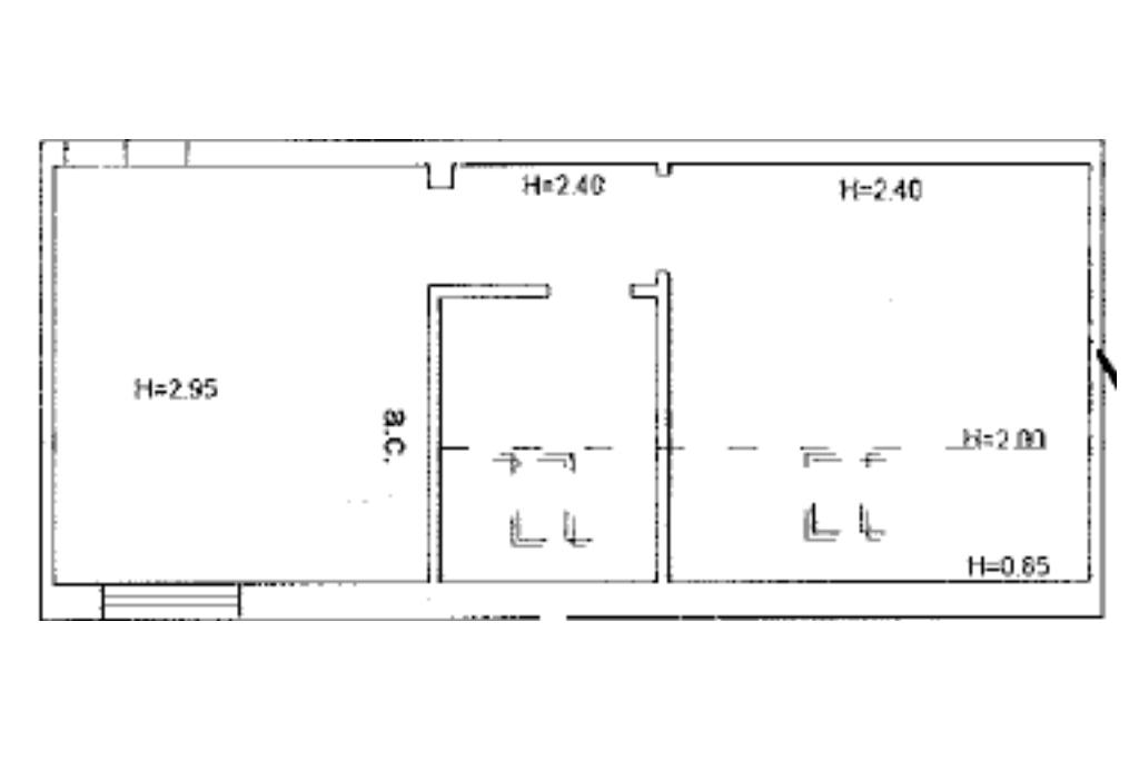
Nella superficie di 40 mq ca interna lorda, gli ambienti interni sono stati 'pensati' sia per soggiorni brevi che per quelli più lunghi. Subito ci accoglie un soggiorno con angolo cottura a vista, ambiente molto luminoso che sfrutta l'altezza totale di 2,95 mt. un bagno finestrato con doccia ed una camera da letto in cui, l'aspetto del mansardato, ne esalta la particolarità ( e l'arredo presente amplifica la sensazione di 'giusto spazio'). Completa la proprietà un locale cantina, utilissimo, di 13 mq posto al piano S1 dello stabile.

PERCHE' UNICO?

Soluzione immobiliare 'atipica mansardata' con tetto lamellare a vista presente in tutto l'appartamento tranne che nella zona del soggiorno( dove l'altezza raggiunge i 2,95 mt ca.), buona luminosità ( vasistas in tutti gli ambienti e finestra con avvolgibile elettrico nel soggiorno), completamente ristrutturata, climatizzatore UNICO ( che abbina design e tecnologia), abitabile da subito con una vetustà inferiore ai 10 anni.

Vi abbiamo incuriosito?

CHIAMACI E FISSA LA TUA VISITA!

Mostra tutto

Nelle vicinanze

Trasporto pubblico Trasporto pubblico
Fiuggi - P.le 23 Giugno/Ex Stazione
Fiuggi - P.le 23 Giugno/Ex Stazione
50 m
Via Rettifilo
Via Rettifilo
320 m
Ricariche auto elettriche Ricariche auto elettriche
Palazzo Della Fonte
460 m
Supermercati Supermercati
Eurospin
940 m
Ristoranti Ristoranti
Ristoranti
110 m
La Grotta
1,4 Km
La Ripa
2,8 Km
Mostra tutto

Caratteristiche

Rif.:
61119863
Piano:
3 di 4 con ascensore (Piano attico)
Camere da letto:
1
Arredamento:
Assente
Condizionamento:
Autonomo
Ascensore:
Mostra tutto
Prezzo Prezzo
€ 53.500
Rata mutuo Rata mutuo
€ 250 / mese
Proponi il tuo prezzoProponi il tuo prezzo

Classe Energetica

E
E
E
E
E
E
E
E
E
Anno di costruzione:
1967
Riscaldamento:
Autonomo
Tipo impianto:
Ad aria
Tipo alimentazione:
Altro

Prezzo ridotto di €1 (9%%)

Ti interessa visionare l'immobile?

Fissa un appuntamento  Fissa un appuntamento

Richiedi informazioni

Clicca su Leggi per aprire l'informativa
* Questi campi sono obbligatori

Calcola il tuo mutuo

Semplice e senza impegno
Anticipo

( % )
Mutuo

( % )

pochi semplici passi

inserisci i tuoi dati
Questionario completato
Grazie per aver richiesto un appuntamento senza impegno con un nostro Consulente del Credito e Assicurativo.

Hai inserito correttamente tutti i dati necessari e a breve riceverai una e-mail con un link da convalidare per inviare i tuoi dati.
Affiliato
Kcs Mediazione Srl
Via Fiume, 42 03014 Fiuggi (FR)

Il nostro staff


  • Katiuscia Casale
    Affiliata
Via Fiume, 42 03014 Fiuggi (FR)
Zona: Fiuggi
Mostra su mappa
Affiliato
Kcs Mediazione Srl
Via Fiume, 42 03014 Fiuggi (FR)

2026 Tecnocasa Franchising S.p.A. - P. IVA 08365160152 - Via Monte Bianco 60/A 20089 Rozzano (MI). Ogni agenzia ha un proprio titolare ed è autonoma. Privacy policy | Policy utilizzo | Cookie policy